Antes de comenzar a enlistar los pasos necesarios para tener un proyecto exitoso déjame hacerte algunas aclaraciones y observaciones:
Ya te visualizaste en tu casa ideal, la que te has imaginado toda tu vida, donde probablemente tus hijos crecerán (si esos son tus planes), a donde invitarás a tus amigos y familiares y donde planeas descansar después de tus largas jornadas de trabajo cómodamente.
¿Cuánto tiempo piensas habitarla? ¿20, 30, 40, 50 años?
¡Ojo! Son de 20 a 50 años de estar viendo la misma casa todos los días, no esta de más pensar que tiene que ser algo que te guste, por que si no, podrás ser prisionero de tus decisiones por esa cantidad de años.
Entonces, lo primero que tienes que pensar es en un BUEN DISEÑO (Lo que los arquitectos llamamos Anteproyecto), algo de lo que te sientas orgulloso todo el tiempo y disfrutes de cada uno de los espacios que pensaste para ti.
UN BUEN ARQUITECTO; te puede ayudar a visualizar tu diseño de diferentes maneras, como planos, bosquejos a mano, representaciones digitales, etc. El punto es que puedes comprender todo lo que propone para ti y que te asegures de que sea lo que en verdad necesitas. Para esto serán necesarias varias reuniones y muchas pláticas para que pueda captarte la idea los más completa posible, metérse en tu vida y tu rutina para que comprenda todas tus necesidades y gustos.
Un error muy común en las familias que están por construir su primera casa de sus sueños es que no contemplan el tiempo y el recurso del Proyecto Arquitectónico. ¡Recuerda que vas a habitar tu casa probablemente 20 o 50 años! Vale la pena invertir algunos meses para que sea lo que esperas y no seas prisionero de tus decisiones. (Un buen anteproyecto de una casa completa puede tardar de 2 a 3 meses con buenos resultados)
UN MAL ARQUITECTO; Te va a dar por tu lado con tal de vender y te asegurará que el proyecto sale en una o dos semanas y vas a tener la mejor casa del mundo a un precio muy bajo. (Ojalá fuera verdad porque créeme que hasta yo lo contrataría)
Después de hacer una propuesta conceptual en base a los requerimientos que solicitaste y una distribución de espacios aprobada por ti.
Se entrega un paquete de planos, los cuales detallaremos a continuación:
1. Plantas Arquitectónicas: La cantidad de plantas dependerán de los niveles del proyecto, si es de 1, 2 o 3 niveles. En ella se indicarán los muros, puertas, ventanas, mobiliario, circulaciones, niveles de pisos, escaleras, nombres de los espacios proyectados, límites de terreno, restricciones, bardas, referencias de ubicación y orientación. Apoyado con cotas (medidas) para que puedas tener una buena comprensión del contenido.
2. Fachadas: Norte, sur, este y oeste. En ellas se podrán apreciar la altura de los muros, cubiertas, puertas y ventanas, también apoyado con cotas y niveles de pisos y banquetas.
4. Cortes y Planos de Sección: Como una fachada es para indicar la altura y los niveles de distintos elementos pero en éste caso, se hace un corte como una rebanada de pastel y se puede apreciar una parte del interior de la casa donde podemos apreciar plafones, escaleras en sus vistas laterales, niveles de pisos y escalones, muebles como cocina, closets, etc.
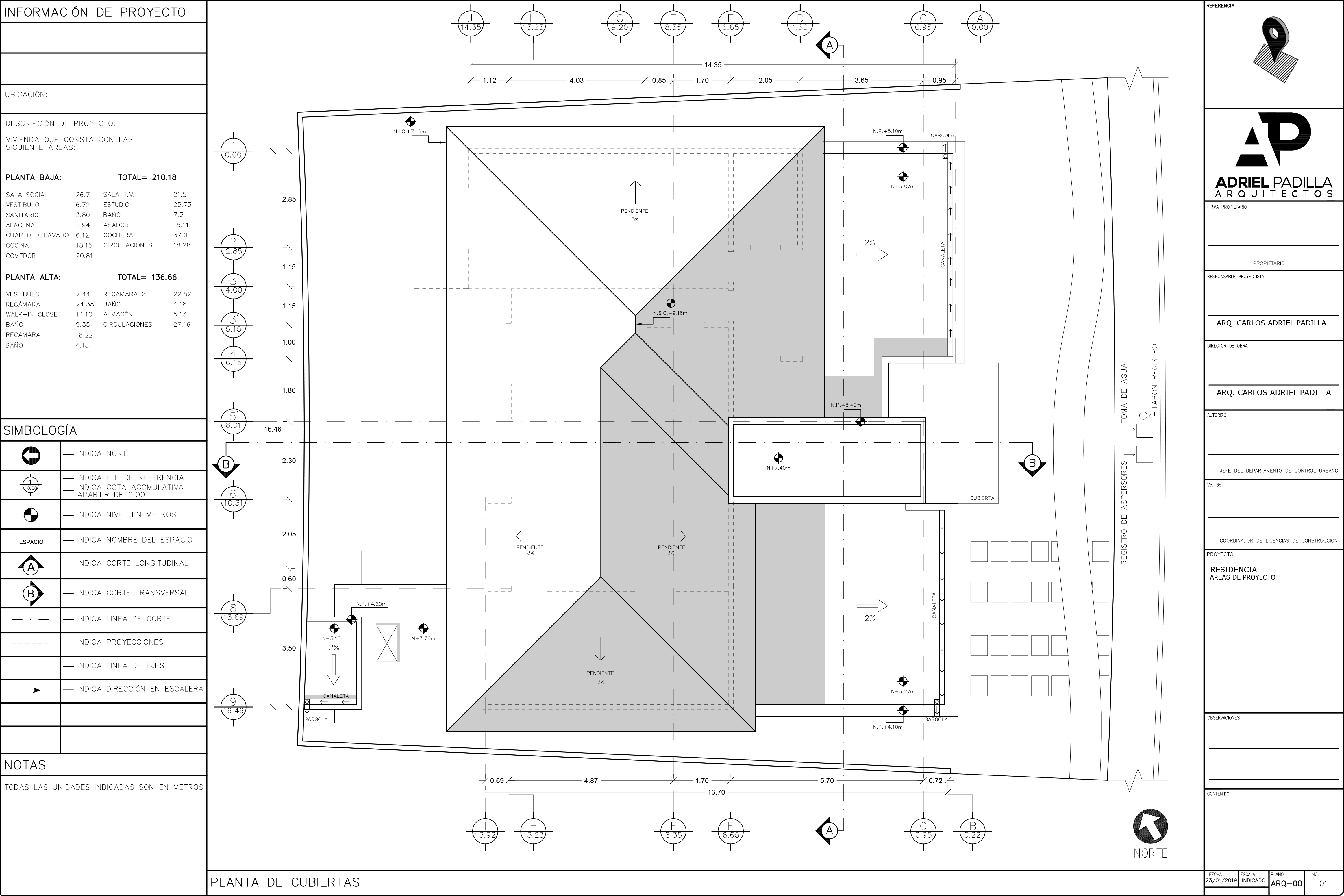
5. Planta de Cubiertas: Es una vista en planta pero de techos/cubiertas. En donde podemos apreciar las pendientes de las mismas para visualizar el flujo del agua en caso de lluvias y evitar estancamientos que después puedan provocar problemas de goteras o filtraciones. En éste plano deben de indicarse el porcentaje de pendiente de cada elemento y el nivel al que se encuentra.
6. Planta de conjunto: En éste plano se agregan todos los elementos en una vista aérea donde se puede apreciar el terreno completo, la construcción proyectada y los espacios exteriores.
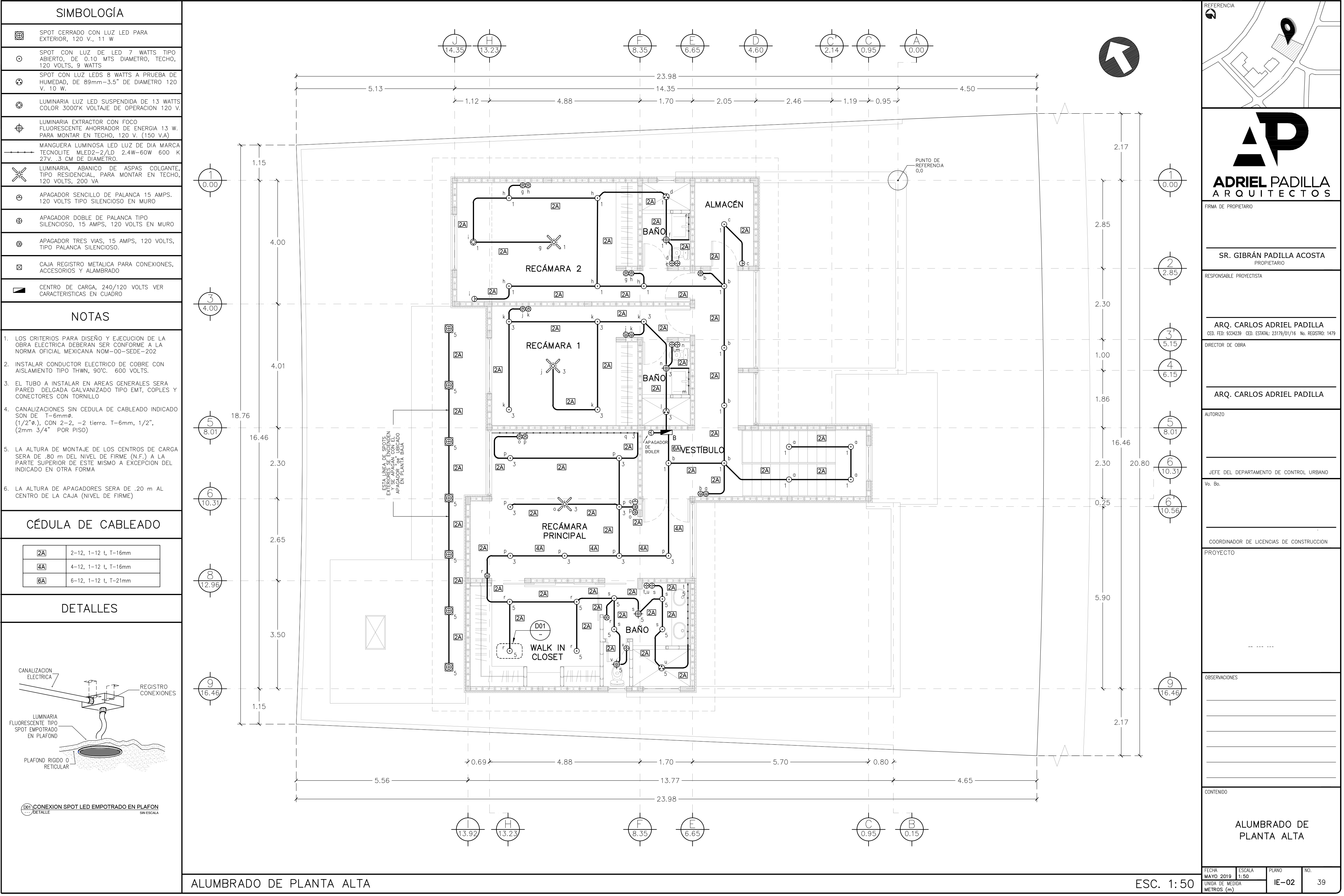
7. Propuesta de iluminación: La ubicación de todas las luminarias y apagadores para que sean parte del diseño integral de la casa. Pueden ser lámparas colgantes, spots, mangueras led, etc.
8. Perspectivas 2D o 3D: Pueden ser hechas a mano o digitales, pero deben de reflejar la idea completa del proyecto de manera gráfica y clara. (la cantidad de las imágenes depende de cada proyecto o arquitecto).




Para hacer un mejor trabajo, cada arquitecto puede agregar detalles o planos para solucionar mejor el proyecto, pero sin duda ésta es la información indispensables para entregar un buen Anteproyecto.
UN MAL ARQUITECTO; Te dirá que ya que tengas el diseño puede iniciar la obra sin problemas y solicitará un anticipo.
UN BUEN ARQUITECTO; Te asesorará para el siguiente paso, que es un PROYECTO EJECUTIVO. tenemos el diseño pero no la ingeniería y los detalles necesarios para llevarlo a la realidad, estas ingenierías y detalles son:
Cálculo e ingeniería estructural
Proyecto de ingeniería eléctrica
Proyecto de instalaciones hidráulicas y sanitarias
Instalaciones de gas
Instalaciones de aire acondicionado
Propuesta de acabados
¿Cómo puedes sacar un presupuesto específico si desconoces todos estos detalles? Seguro que la cotización de obra esta muy alejada de la realidad si aún no se tiene toda ésta información. (pagarás mucho más de lo debido, o peor aún, al contratista no le saldrán las cuentas y terminarás con una obra abandonada)
Otro error común en el proceso de un PROYECTO EJECUTIVO es contratar las ingenierias con proveedores por separado y sin revisión del arquitecto proyectista.
Por buenos que sean los ingenieros, si desconocen el proyecto pueden interferir con otros ingenieros, por ejemplo: La persona encargada de solucionar los ductos del aire acondicionado decide que pasen por el área de la cocina pero resulta que exáctamente donde pasa ese ducto el ingeniero de la estructura colocó un refuerzo de columna y nadie se dio cuenta hasta el proceso de construcción. Consencuencia: Modificar ductos prefabricados, mas costo de mano de obra, volver a pagar por la fabricacion de las nuevas piezas, ahora que si no hay lugar por donde reubicarlos se tendrá que modificar plafones y muros para tapar el error. Apróx. 3 veces más caro de lo que tenías presupuestado.
Consejo: Nadie conoce el proyecto mejor que la persona que lo diseñó, procura que esté involucrado en todos los procesos desde el proyecto ejecutivo hasta la construcción, nadie como él para proponer soluciones que no afecten dramáticamente la belleza de tu proyecto. Si le confiaste la obra a otra persona procura almenos acordar una supervisión de la obra con el proyectista.
Después de concluir con el proyecto ejecutivo se puede continuar sin problemas con una cotización de obra. Mi recomendación es que esa cotización sea en base a precios unitarios, es decir, que este indicado cada trabajo por separado y la cantidad a ejecutar por unidad, Ej. M2, m3, ml, piezas, etc)
Así puedes medir físicamente el trabajo realizado y pagar por la cantidad realizada únicamente y evitar que te cobren de más.
Y por último,
Asegúrate de tramitar las licencias y permisos de construcción correspondientes y que el arquitecto proyectista esté certificado para firmar ante las autoridades necesarias.